{{ $t('FEZ002') }}總務處|
採購內容:
工業風鐵吊扇(ASB扇葉)*(6支)
LED 4尺雙管防眩燈罩吊燈*(18組)
電燈及吊扇安裝配線及教室老舊電線更新
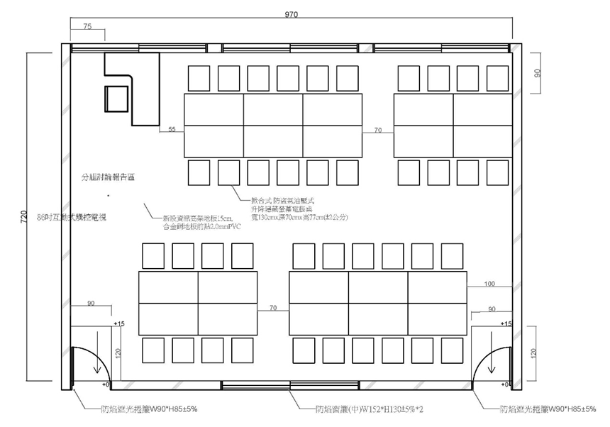
防焰窗簾(大)W150*H240±5%*6
防焰窗簾(中)W152*H130±5%*2
防焰窗簾(小)W90*H85±5%*2
場地示意圖

請有意願的合格廠商派員到學校實地勘察後,於113年12月28日前提出報價
{{ $t('FEZ003') }}2024-12-20
{{ $t('FEZ004') }}2025-09-09|
{{ $t('FEZ005') }}910|